※本物件はownsから離れており(物件名称が変更しており)、“他拠点の横断利用”の対象外です。
LOCATION
日本橋
PLAY FULL MOVIE
Nihombashi
かつての幹線道である五街道の起点であり、日本経済の中心として発展してきた街・日本橋。これまでの「伝統」とこれからの「新時代」を織り重ねながら発展を続けてきました。
SCROLL
SCROLL
DESIGN THEME
Layered
- 伝統と未来に、くつろぎとワクワクを-
日本橋では、さまざまな年代の人々が混ざり合い生まれる多様なデザインや文化を“Layered”というコンセプトに。それぞれの年代が”レイヤー”となって混ざり合い、デザインを構成する、多様で創造的な拠点をめざします。
日本橋では、さまざまな年代の人々が混ざり合い生まれる多様なデザインや文化を“Layered”というコンセプトに。それぞれの年代が”レイヤー”となって混ざり合い、デザインを構成する、多様で創造的な拠点をめざします。
SCROLL
SCROLL
FEATURE
-
MATERIAL街から着想を得た素材空間では木やスチールといった素材に加えて、版築やモルタルなどの素材を融合。ブラウン、グリーン、ホワイトを基調にしながら、くつろぎを演出します。古くから使われてきた版築やモルタルの空間の中に、近代をイメージしたスチール脚のチェアを融合することで、時代の折り重なりを表現します。街から着想を得た素材空間では木やスチールといった素材に加えて、版築やモルタルなどの素材を融合。ブラウン、グリーン、ホワイトを基調にしながら、くつろぎを演出します。古くから使われてきた版築やモルタルの空間の中に、近代をイメージしたスチール脚のチェアを融合することで、時代の折り重なりを表現します。1 / 2
-
ART創造性を引き出すアート作品3階会議室フロアのエントランスには、物件テーマの「Layered」を視覚的にも感じられる、写真家・安藤瑠美の写真作品を額装して展示。レタッチ技術を駆使して「虚構の東京を写真で作る」ことをテーマにしたシリーズ 「TOKYO NUDE」から、実際に日本橋にて撮影した写真を額装・展示しました。1 / 1
-
SUSTAINABLEZEB readyを取得環境認証「ZEB ready(※)」を取得。(※基準一次エネルギー消費量から50%以上の一次エネルギー消費量削減に適合した建築物の場合取得可能)脱プラスチックの推進入退室セキュリティ認証には、プラスチックのカードではなく、スマートフォンと顔認証を採用するなど、脱プラスチックを推進。未来に向けて、必要な機能を見直した建物仕様ownsは、従来のオフィス価値基準の足し合わせではなく、本当に必要な機能を改めて見直して環境に配慮した建物仕様。自然と共生する、未来を見据えた新しい価値基準のオフィス。1 / 3
-
CONVENIENT & SAFE安心のセキュリティ対策エントランスホール、エレベーター籠内などの多重セキュリティシステム導入により、オフィスの安全性を高めている。ownsは1フロア1テナントのため、情報セキュリティ観点でも有利なつくり。1 / 1
FLOOR GUIDE
-
1,2 Fコミュニケーションが生まれる飲食スペース
街とつながるオープンなエントランスカフェなど、密度の濃いコミュニケーション、オフィスでは生まれない会話を。コミュニケーションが生まれる飲食スペース
街とつながるオープンなエントランスカフェなど、密度の濃いコミュニケーション、オフィスでは生まれない会話を。コミュニケーションが生まれる飲食スペース
街とつながるオープンなエントランスカフェなど、密度の濃いコミュニケーション、オフィスでは生まれない会話を。コミュニケーションが生まれる飲食スペース
街とつながるオープンなエントランスカフェなど、密度の濃いコミュニケーション、オフィスでは生まれない会話を。-
共用wi-fi
-
-
3 Fオフィスの先に、多様な共用空間
ちょっとした打ち合わせも、時間貸会議室での作業も、思いのままに。オフィスの先に、多様な共用空間
ちょっとした打ち合わせも、時間貸会議室での作業も、思いのままに。オフィスの先に、多様な共用空間
ちょっとした打ち合わせも、時間貸会議室での作業も、思いのままに。オフィスの先に、多様な共用空間
ちょっとした打ち合わせも、時間貸会議室での作業も、思いのままに。-
共用wi-fi
-
専用wi-fi
-
-
4 Fすぐに入居できるセットアッププラン
入居にかかるイニシャルコストや時間、手間を省くことが可能なセットアッププラン。すぐに入居できるセットアッププラン
入居にかかるイニシャルコストや時間、手間を省くことが可能なセットアッププラン。すぐに入居できるセットアッププラン
入居にかかるイニシャルコストや時間、手間を省くことが可能なセットアッププラン。すぐに入居できるセットアッププラン
入居にかかるイニシャルコストや時間、手間を省くことが可能なセットアッププラン。-
入居工事済
-
家具配置済
-
-
5 Fすぐに入居できるセットアッププラン
入居にかかるイニシャルコストや時間、手間を省くことが可能なセットアッププラン。すぐに入居できるセットアッププラン
入居にかかるイニシャルコストや時間、手間を省くことが可能なセットアッププラン。すぐに入居できるセットアッププラン
入居にかかるイニシャルコストや時間、手間を省くことが可能なセットアッププラン。すぐに入居できるセットアッププラン
入居にかかるイニシャルコストや時間、手間を省くことが可能なセットアッププラン。すぐに入居できるセットアッププラン
入居にかかるイニシャルコストや時間、手間を省くことが可能なセットアッププラン。
-
6-13 F自由にカスタマイズできるオフィススペース
仲間が集う拠点として、デスクを囲んだ議論から、自然光が差し込むコミュニケーションスペースでのカジュアルな会話まで、使い方は自分たち次第。自由にカスタマイズできるオフィススペース
仲間が集う拠点として、デスクを囲んだ議論から、自然光が差し込むコミュニケーションスペースでのカジュアルな会話まで、使い方は自分たち次第。自由にカスタマイズできるオフィススペース
仲間が集う拠点として、デスクを囲んだ議論から、自然光が差し込むコミュニケーションスペースでのカジュアルな会話まで、使い方は自分たち次第。自由にカスタマイズできるオフィススペース
仲間が集う拠点として、デスクを囲んだ議論から、自然光が差し込むコミュニケーションスペースでのカジュアルな会話まで、使い方は自分たち次第。
-
R F開放的な屋上テラス
開放的な空間での考えごとも、ちょっとした打ち合わせも、新しい交流を生むイベントも、思いのままに。開放的な屋上テラス
開放的な空間での考えごとも、ちょっとした打ち合わせも、新しい交流を生むイベントも、思いのままに。開放的な屋上テラス
開放的な空間での考えごとも、ちょっとした打ち合わせも、新しい交流を生むイベントも、思いのままに。-
共用wi-fi
-
PLAN
-
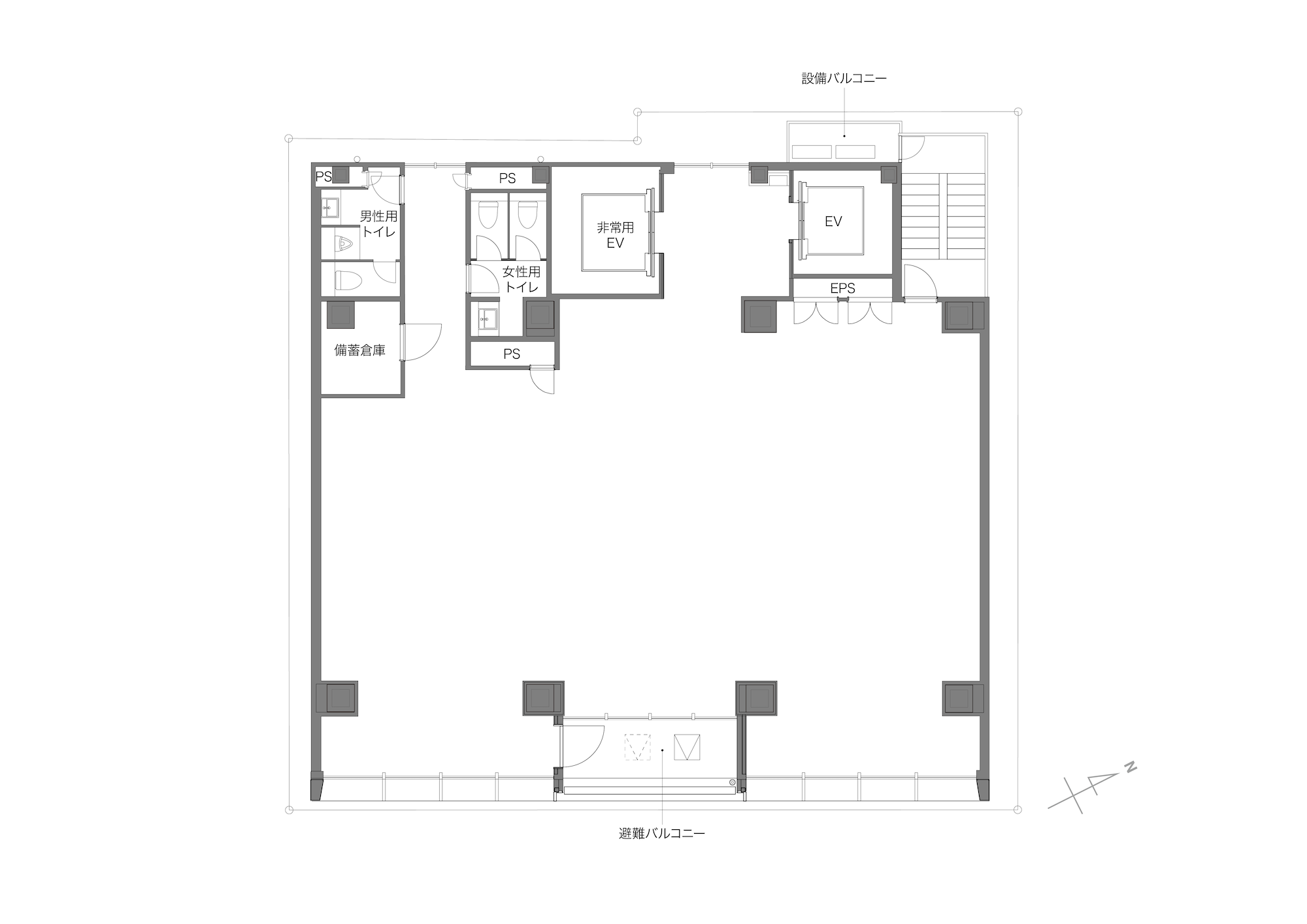
プレーンオフィス
企業の思想や価値観を反映しやすい自由度の高いフロアプラン・仕様 213.97㎡(64.72坪) -
サンプルレイアウト
ラウンジやミーティングスペースを配置することで社内のコミュニケーションを誘発するプラン(30席)
ACCESS
東京都中央区日本橋二丁目10-4
銀座線、東西線、浅草線「日本橋」駅 徒歩2分
JR各線「東京」駅 徒歩9分
JR各線「東京」駅 徒歩9分
OUTLINE
-
名称owns日本橋
-
竣工2025年2月
-
用途事務所・飲食店舗
-
構造/規模鉄骨造/地上13階
-
延床面積2,846.56㎡
-
基準階貸室面積213.97㎡(64.72坪)
-
天井高基準階(4~13階):3,265mm
※スケルトン天井、一部ボード天井
スモールオフィス(3階):2500mm -
電気容量基準階(4~13階):60VA/㎡
-
空調方式個別空調
(基準階:3グループ/各階) -
照明LED照明
-
光ケーブル各階EPSの弱電端子引込済(2芯)
-
Wifi共用wifiあり(1階、2階、3階、屋上)
-
セキュリティ機械警備(24時間入退館可)
1階、EV内、各階屋外階段に非接触型リーダー
1階は顔認証併設 -
受電方式高圧受電方式
-
エレベーター2台(乗用13人乗・乗用兼非常用17人乗)
-
駐車場敷地外に6台
-
開発事業主NTT都市開発株式会社
-
設計株式会社プランテック
-
施工東急建設株式会社